货架第三方检测-CNAS/CMA/SEMA三重资质认可认定
phone
021-67157048
recent_actors
职业责任险
bubble_chart
产品责任险
security
公正性声明
gavel
侵权声明
首页
188新利app
新利18官方网站下载ios检验
18luck
188新利官方网址
18lickc新利
18iuck新利
18l18luck新利
18keno新利登录
新利18国际娱开户
188新利官网
技术问答
资料下载
18iuck新利
188新利app
关于
资质优势
新闻动态
版权声明
188新利官网
188新利
188新利
仓库货架安全小测试
18luck快乐彩
货架认证证书查询平台
188新利官方网址
技术文章
新利18官方网站下载ios
>
188新利官网
event
2021-11-22
visibility
阅读: 353
货架横梁事故案例浅析
货架发生整体性连续性倒塌的概率不是很高,实际中经常发生的、很多客户都遇到过的是横梁坍塌导致的事故,在我们的实际检测项目中也得到了印证。针对横梁坍塌的可能原因,我们
event
2021-11-22
visibility
阅读: 179
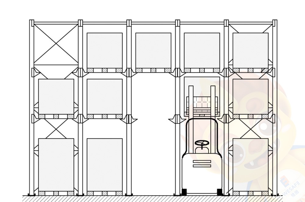
驶入式货架(配备叉车)安装公差
货架的生产、组装和安装的公差、变形和净距,对货架功能实现、搬运设备的运行具有重要作用。对于确定货架的可靠性以确保机械搬运设备撞击、托盘撞击或系统崩溃的几率在可接受
event
2021-11-22
visibility
阅读: 290
悬臂式货架(配备叉车)安装公差
货架的生产、组装和安装的公差、变形和净距,对货架功能实现、搬运设备的运行具有重要作用。对于确定货架的可靠性以确保机械搬运设备撞击、托盘撞击或系统崩溃的几率在可接受
event
2022-11-11
visibility
阅读: 303
自动化立库货架(配堆垛机)安装公差
货架的生产、组装/安装的公差、变形和净距,对货架功能实现、搬运设备的运行具有重要作用,对于确定货架的可靠性以确保搬运设备撞击、托盘撞击或系统崩溃的几率在可接受的范围
event
2021-11-22
visibility
阅读: 204
横梁式货架(配备叉车)安装公差
货架的生产、组装/安装的公差、变形和净距,对货架功能实现、搬运设备的运行具有重要作用,对于确定货架的可靠性以确保搬运设备撞击、托盘撞击或系统崩溃的几率在可接受的范围
event
2021-11-22
visibility
阅读: 277
货架结构设计:测试汇总
如前文所述,货架虽然是标准化产品,但是仅通过计算进行设计可能不够准确。因此,当计算分析方法未给出或者不适用时,应指定测试方法。 值得一提的是,以下所有测试均为辅助设
event
2021-11-22
visibility
阅读: 542
货架结构设计:构件设计(二)立柱组
构件设计承载力应通过测试或理论计算方法确定。理论计算方法应合理考虑开孔与局部屈曲、整体屈曲和畸变屈曲以及缺陷的相互作用影响。对于连续开孔的构件,理论计算方法应通过
event
2021-11-22
visibility
阅读: 560
货架结构设计:构件设计(一)横梁
构件设计承载力应通过测试或理论计算方法确定。理论计算方法应合理考虑开孔与局部屈曲、整体屈曲和畸变屈曲以及缺陷的相互作用影响。对于连续开孔的构件,理论计算方法应通过
event
2021-11-22
visibility
阅读: 507
货架结构设计:结构分析(二)整体分析
在完成分析模型、把荷载施加于模型上之后,接下来就是选择合适的分析方法。分析方法的选择主要考虑精度、速度两方面,最佳的分析方法能在保证计算精度的前提下尽量节省时间
<
188新利官网
...
7
8
9
10
11
...
13
>
填写需求信息或留言提问,快速获取报价及解答
现在填写
map